
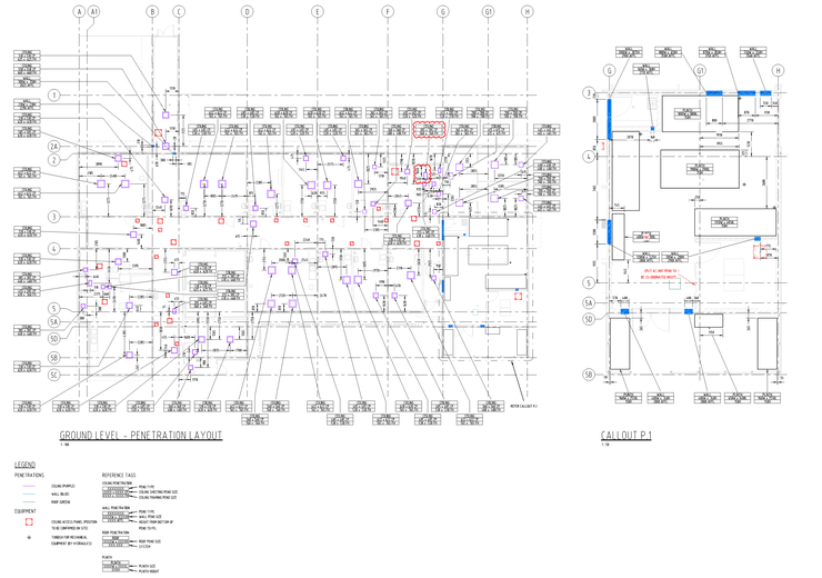
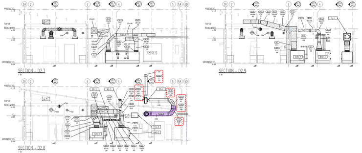
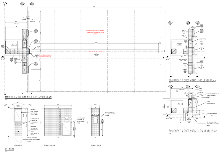
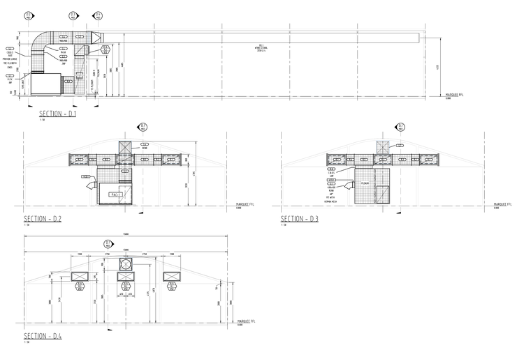
Using Revit, Advance Steel and AutoCAD:
Coordinated Services Seismic Hanging/Mounting Draughting and Engineering*
Mechanical
Hydraulic
Electrical
*Engineering and certification provided by third party
As Built Drawings
Mechanical
Hydraulic
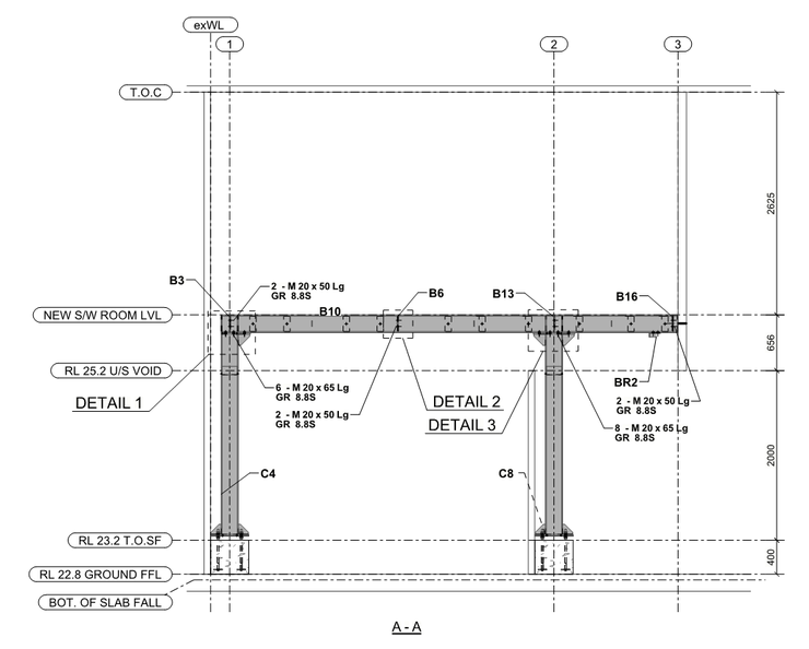
Steel (structural)
Documentation of Existing
Mechanical
Hydraulic
Structural




















